Create Your First Project
Start adding your projects to your portfolio. Click on "Manage Projects" to get started
Working Drawings
Location
New Delhi
Date
June, 2023
Role
Architectural Intern
Project type
Working Drawings
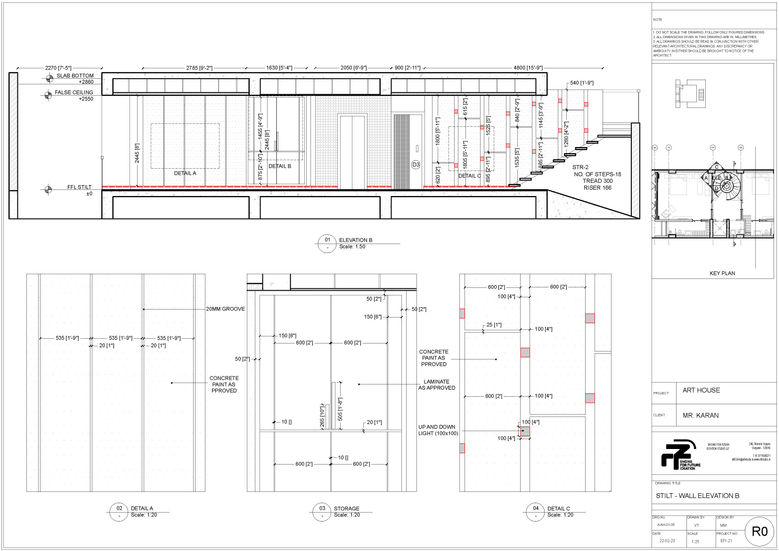
This collection showcases a series of detailed architectural working drawings developed across various academic and professional projects. These drawings demonstrate my proficiency in translating design intent into buildable detail, aligning spatial vision with technical execution.
The set includes:
Plans, Sections, and Elevations with accurate dimensions and material annotations.
Wall sections, foundation details, and roof junctions showing structural and envelope logic.
Plumbing, electrical, and HVAC layouts coordinated across disciplines.
Door-window schedules, staircase details, and toilet layout drawings adhering to local codes and ergonomic standards.
Construction drawings for residential, public, and experimental projects, each tailored to site conditions, material systems, and user needs.
Prepared using AutoCAD, Revit, and Rhino, these drawings reflect a command over line weights, layer conventions, and technical clarity, essential for communicating with contractors, consultants, and on-site teams. In internship settings, I contributed to GFC (Good for Construction) sets, helping bridge design to execution.





































































































